с высоким уровнем комфорта

Квартира для жизни и отдыха

в 5-10 минутах ходьбы от моря

 
площадь

от 33 до 76 м²

 
завершение

3 кв-л 2027 года

 
стоимость

от 4 880 400

ФЗ-214, эскроу -счета

Проживая рядом с морем, всегда остаешься на связи со столицей Крыма. От Симферополя до ЖК 30 минут.

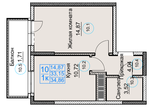
ТИПОВЫЕ ПЛАНИРОВКИ ОБЪЕКТОВ

1-комнатные

Площадь от 33 м2

от 4.880.000 руб

2--комнатные

Площадь от 50 м2

от 7.078.000 руб

3-комнтаные

Площадь от 76.49 м2

от 10.095.000 руб

Квартира для жизни и отдыха ЭТО

Магазины и супермаркеты от 300 метров до 1,3 км.
Новый детский сад — 480 метров.
Лечебная амбулатория ГБУЗ — 700 метров.
Центр — 750 метров.
До моря 950 метров.
Школа — 1,4 км.

Детская и спортивная площадки.
Зона street workout и зона барбекю.
Ландшафтный дизайн.
Система видеонаблюдения и wi-fi на территории.
Гостевой наземный паркинг на 84 м/м.
Безбарьерная среда.

ОНЛАЙН КОНСУЛЬТАЦИЯ

получите больше информации о проекте
и задайте свои вопросы

НЕ НАШЛИ ПОДХОДЯЩЕЕ?

Укажите параметры недвижимости, и мы подберем варианты в течение дня бесплатно

Пожалуйста, укажите телефон
Согласен с политикой конфиденциальности
Необходимо согласие
Написать в мессенджер